千葉市稲毛区 賃貸店舗・事務所

お問い合わせ番号:f11023-126152ts-45783
賃貸店舗・事務所
千葉市稲毛区小仲台2
JR総武線 稲毛 ( 徒歩 5分 )
賃料 70.00万円(税別)
(坪単価:1.55万円)
2025年7月完成予定の新築です。
分割貸などご相談下さい。
~◆貸店舗、貸事務所専門サイト◆~
千葉の店舗探し、事務所探し、貸地は
『テナントスタイル』へお任せ下さい♪
管理費 20,000円
-
保証金
解約引
-
-
敷金
礼金
3ヶ月
1ヶ月(税別)
建物/専有
面積
149.13m2
(45.11坪)
土地面積 90.90m2
(27.49坪)
築年月 2025年7月
(令和7年7月)
駐車場 所在階 1-3階 地上階数
地下階数
4階
-
構造 鉄筋コンクリート造(RC)
用途地域 第一種住居地域
現況 建築中
入居/引渡 建設中 
引渡年月 2025年07月中旬
契約期間 2年
取引 仲介
物件登録日 2024年7月12日
情報更新日 2025年11月11日
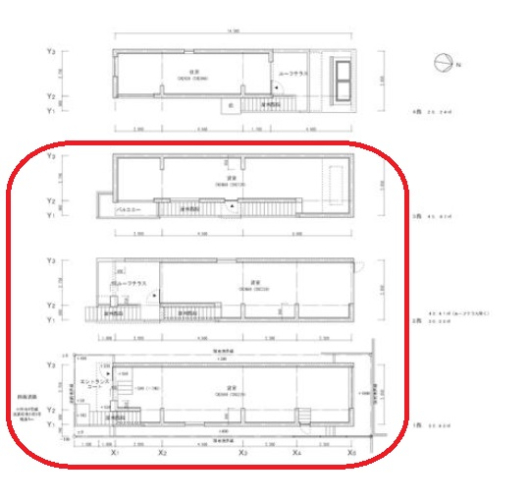
■スケルトン渡し
■分割貸相談/可
・1F:29万円税別/52.93㎡
・2F:27万円税別/50.33㎡
・3F:24万円税別/45.87㎡
※管理費/10,000円

※家賃保証会社加入/要
千葉市稲毛区 賃貸店舗・事務所 のことならお気軽にご相談ください。
テナントスタイル(㈱スタイル・レゴ)
TEL:043-420-8742
営業時間:10:00-18:00
メールでのお問い合わせ

お電話の場合は「テナントショップを見ました。物件番号は < f11023-126152ts-45783 > です」と伝えていただくとスムーズにお応えできます。

  • 借りる
  • 店舗を探す
  • 事務所・事業所を探す
  • 倉庫・工場を探す
  • 借地を探す
  • 居抜き物件
  • 賃貸スタイル
  • 倉庫、工場
  • 貸地、売地
  • 買う
  • 売地を探す
フリーワード検索 [New!]
スペース区切りの複合語句検索はできません

  • 依頼する
  • 新着物件!未公開物件!地元に詳しい!
  • 物件リクエスト
  • 店舗のご紹介
  • 本店
  • 鎌取店
  • 成田店
  • 実績紹介
  • 物件募集
  • 物件管理
  • 会社概要・アクセス