千葉市中央区 賃貸店舗・事務所

お問い合わせ番号:f11023-148675ts-46685
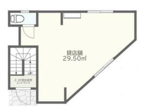
賃貸店舗・事務所
千葉市中央区長洲1
JR外房線 本千葉 ( 徒歩 1分 )
賃料 16.00万円(税別)
(坪単価:1.79万円)
スケルトン渡しの為、お好きに使用できます。
店舗、美容室、物販業などご相談下さい。
~◆貸店舗、貸事務所専門サイト◆~
千葉の店舗探し、事務所探し、貸地は
『テナントスタイル』へお任せ下さい♪
管理費
共益費
-
5,000円
保証金
解約引
-
-
敷金
礼金
更新料
2ヶ月
1ヶ月(税別)
1ヶ月(税別)
建物/専有
面積
29.50m2
(8.92坪)
土地面積 - 築年月 2025年10月
(令和7年10月)
駐車場 - 所在階 1階 地上階数
地下階数
3階
-
構造 木造
現況 建築中
入居/引渡 相談 
引渡年月 2025年10月中旬
契約期間 3年
取引 仲介
物件登録日 2025年7月29日
情報更新日 2026年2月17日
■スケルトン渡し

※家賃保証会社加入/要
※退去時ハウスクリーニング費用は実費精算
※指定家財保険加入/要
※解約予告/3ヵ月前
※飲食店/不可
千葉市中央区 賃貸店舗・事務所 のことならお気軽にご相談ください。
テナントスタイル(㈱スタイル・レゴ)
TEL:043-420-8742
営業時間:10:00-18:00
メールでのお問い合わせ

お電話の場合は「テナントショップを見ました。物件番号は < f11023-148675ts-46685 > です」と伝えていただくとスムーズにお応えできます。

  • 借りる
  • 店舗を探す
  • 事務所・事業所を探す
  • 倉庫・工場を探す
  • 借地を探す
  • 居抜き物件
  • 賃貸スタイル
  • 倉庫、工場
  • 貸地、売地
  • 買う
  • 売地を探す
フリーワード検索 [New!]
スペース区切りの複合語句検索はできません

  • 依頼する
  • 新着物件!未公開物件!地元に詳しい!
  • 物件リクエスト
  • 店舗のご紹介
  • 本店
  • 鎌取店
  • 成田店
  • 実績紹介
  • 物件募集
  • 物件管理
  • 会社概要・アクセス