松戸市 賃貸店舗・事務所

お問い合わせ番号:f11023-154680ts-47020
賃貸店舗・事務所
松戸市小金きよしヶ丘1
JR常磐緩行線 北小金 ( 徒歩 3分 )
賃料 85.00万円
(坪単価:0.75万円)
JR千代田・常磐緩行線 北小金駅 徒歩3分の好立地物件
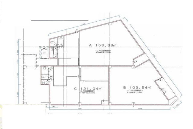
分割貸相談可
~◆貸店舗、貸事務所専門サイト◆~
千葉の店舗探し、事務所探し、貸地は
『テナントスタイル』へお任せ下さい♪
管理費 36,000円
-
保証金
解約引
4ヶ月
-
敷金
礼金
-
-
建物/専有
面積
377.00m2
(114.04坪)
土地面積 - 築年月 1981年10月
(昭和56年10月)
駐車場 - 所在階 1階 地上階数
地下階数
7階
-
構造 鉄筋コンクリート造(RC)
現況 空き
入居/引渡 即時 
契約期間 (定借)3年
取引 仲介
物件登録日 2025年10月29日
情報更新日 2025年10月29日
松戸市 賃貸店舗・事務所 のことならお気軽にご相談ください。
テナントスタイル(㈱スタイル・レゴ)
TEL:043-420-8742
営業時間:10:00-18:00
メールでのお問い合わせ

お電話の場合は「テナントショップを見ました。物件番号は < f11023-154680ts-47020 > です」と伝えていただくとスムーズにお応えできます。

  • 借りる
  • 店舗を探す
  • 事務所・事業所を探す
  • 倉庫・工場を探す
  • 借地を探す
  • 居抜き物件
  • 賃貸スタイル
  • 倉庫、工場
  • 貸地、売地
  • 買う
  • 売地を探す
フリーワード検索 [New!]
スペース区切りの複合語句検索はできません

  • 依頼する
  • 新着物件!未公開物件!地元に詳しい!
  • 物件リクエスト
  • 店舗のご紹介
  • 本店
  • 鎌取店
  • 成田店
  • 実績紹介
  • 物件募集
  • 物件管理
  • 会社概要・アクセス