松戸市 賃貸店舗・事務所

お問い合わせ番号:f11023-159860ts-47245
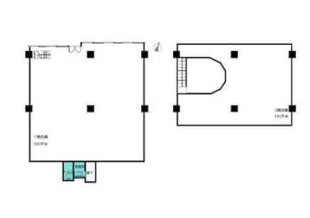
賃貸店舗・事務所
松戸市小金原6
JR千代田・常磐緩行線 北小金 ( 徒歩 34分 )
賃料 80.00万円(税別)
(坪単価:0.57万円)
小金原中央商店街内の1階貸店舗。
業種ご相談ください。

~◆貸店舗、貸事務所専門サイト◆~
千葉の店舗探し、事務所探し、貸地は
『テナントスタイル』へお任せ下さい♪
管理費 -
-
保証金
解約引
-
-
敷金
礼金
5ヶ月
1ヶ月(税別)
建物/専有
面積
465.00m2
(140.66坪)
土地面積 - 築年月 1969年3月
(昭和44年3月)
駐車場 - 所在階 1-2階 地上階数
地下階数
3階
-
構造 鉄筋コンクリート造(RC)
現況 空き
入居/引渡 相談 
契約期間 3年
取引 仲介
物件登録日 2026年2月4日
情報更新日 2026年2月4日
◆トイレ
◆都市ガス、動力
松戸市 賃貸店舗・事務所 のことならお気軽にご相談ください。
テナントスタイル(㈱スタイル・レゴ)
TEL:043-420-8742
営業時間:10:00-18:00
メールでのお問い合わせ

お電話の場合は「テナントショップを見ました。物件番号は < f11023-159860ts-47245 > です」と伝えていただくとスムーズにお応えできます。

  • 借りる
  • 店舗を探す
  • 事務所・事業所を探す
  • 倉庫・工場を探す
  • 借地を探す
  • 居抜き物件
  • 賃貸スタイル
  • 倉庫、工場
  • 貸地、売地
  • 買う
  • 売地を探す
フリーワード検索 [New!]
スペース区切りの複合語句検索はできません

  • 依頼する
  • 新着物件!未公開物件!地元に詳しい!
  • 物件リクエスト
  • 店舗のご紹介
  • 本店
  • 鎌取店
  • 成田店
  • 実績紹介
  • 物件募集
  • 物件管理
  • 会社概要・アクセス