鎌ケ谷市 賃貸店舗・事務所

お問い合わせ番号:f11023-149212ts-46716
賃貸店舗・事務所
鎌ケ谷市富岡1
東武野田線 鎌ヶ谷 ( 徒歩 7分 )
賃料 80.00万円(税別)
(坪単価:0.40万円)
新京成線初富駅までは徒歩5分。
業種ご相談下さい。
~◆貸店舗、貸事務所専門サイト◆~
千葉の店舗探し、事務所探し、貸地は
『テナントスタイル』へお任せ下さい♪
管理費 20,000円
-
保証金
解約引
-
-
敷金
礼金
更新料
5ヶ月
1ヶ月(税別)
1ヶ月(税別)
建物/専有
面積
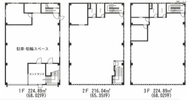
665.82m2
(201.41坪)
土地面積 - 築年月 1973年4月
(昭和48年4月)
駐車場 有り無料 所在階 1-3階 地上階数
地下階数
3階
-
構造 鉄骨造
用途地域 近隣商業地域
現況 空き
入居/引渡 相談 
契約期間 3年
取引 仲介
物件登録日 2025年8月8日
情報更新日 2025年12月23日
■公営水道・本下水・LPG
■男女別トイレ
■造作譲渡料/2階内装費、エアコン4基、照明設備1,800,000円税別

※家賃保証会社加入/要
鎌ケ谷市 賃貸店舗・事務所 のことならお気軽にご相談ください。
テナントスタイル(㈱スタイル・レゴ)
TEL:043-420-8742
営業時間:10:00-18:00
メールでのお問い合わせ

お電話の場合は「テナントショップを見ました。物件番号は < f11023-149212ts-46716 > です」と伝えていただくとスムーズにお応えできます。

  • 借りる
  • 店舗を探す
  • 事務所・事業所を探す
  • 倉庫・工場を探す
  • 借地を探す
  • 居抜き物件
  • 賃貸スタイル
  • 倉庫、工場
  • 貸地、売地
  • 買う
  • 売地を探す
フリーワード検索 [New!]
スペース区切りの複合語句検索はできません

  • 依頼する
  • 新着物件!未公開物件!地元に詳しい!
  • 物件リクエスト
  • 店舗のご紹介
  • 本店
  • 鎌取店
  • 成田店
  • 実績紹介
  • 物件募集
  • 物件管理
  • 会社概要・アクセス